

當環保意識越來越強烈,用二手貨櫃做建築物的新聞也越來越多
不但讓廢棄貨櫃能賦予新的生命
更大符節省了建築所需的材料與時間,透過這次設計含施工的紀錄
帶大家來了解一下它們是怎麼從照片中的廢棄貨櫃變身成兩層樓的渡假小別墅吧!
業主在新竹縣的尖石鄉經營露營區,在營區內想用貨櫃屋做為自宅及販賣部
在討論好設計概念與圖面後,我們來到北海岸的二手貨櫃廠區挑貨櫃

首先,二手貨櫃的狀況好壞參疵不齊,這真的要一個個很有耐心的仔細檢查
主要是看板金的狀況,撞傷比較少,生繡比較少,不要有破洞或漏水的情況
更重要的是它四角的鋼柱不要變形! 角柱如果變型了將來在開孔跟設計都會有影響的

在眾多堆疊的貨櫃中,我們找了4個貨櫃做住宅用,2個貨櫃做露營區的販賣部

把貨櫃挑出來在廠區做好開孔跟烤漆,防繡處理及板金,這幾個墨綠色的貨櫃就是小別墅的雛型了!!

貨櫃開完孔後要在廠區針對開孔的位置做好鐵件的框件加強,這樣才不會變形

因為這趟上山的路很小,所以連貨櫃車都進不去,只能用兩台吊車輪流用接力的方式往上吊
所以我們這次沒有在工廠做其他內裝,怕在吊運的過程中會變形,但是一般來說如果運過去的路程是可以的
還是可以在廠內把該做的裝潢都做好再到現場組裝就好

都開完孔也確認烤漆防水,鐵件加強完成後,就準備出發前往尖石囉!!
不過在那之前,現場也有許多準備工作需要先完成等待貨櫃成品的到來

整地.....

完成平地整建後,看現場地面的狀況,這裡不太需要整片水泥打底,因為本身地基就是紗石土混合的
在盡量不破壞地貌與自然的情況下,貨櫃屋的地基我們用預埋箱函+鐵件的方式
放樣後把鐵件加鋼筋先預埋至地下,然後灌漿夯實,確保裡面的鋼筋跟鐵件將來不會被水碰到發生鏽蝕

箱函埋好以後再鋪上碎石面,讓貨櫃下方透氣,選則不全打水泥底的方式地面也可以呼吸,只露出我們預埋好的鐵件
等著貨櫃來定位時四角對四角焊接死就沒問題囉!

從基隆北海岸一路出發直達尖石鄉山腳下,這一次動員了六台貨櫃車
司機伯伯一路問路一路念....(地點派偏僻

然後再用小吊車一座座的慢慢輪流吊到山上....


在定位的同時下方也在固定焊接 這一次要八九個人才可以完成組裝的大工程!!


下面三個固定好後再吊上二樓,焊接再固定

二樓跟一樓的貨櫃上下是連通的,所以在放二樓的時候要特別對準已經開好的樓梯孔

完成!! 總算所有貨櫃都到了定位也焊接完畢

因為櫃與櫃的組裝面焊點還需要在防繡再上防水,所以在等防水乾前暫時先幫貨櫃穿個衣服 ![]()
貨櫃組裝的接縫處都要用鐵件做蓋子>>確認滿焊>>再上epoxy或是彈性水泥類的防水層
相接處是貨櫃最容易漏水的地方
===========================================================
以上結構體的部份已經告一個段落,接下來就是內裝的部份囉!!

貨櫃原本的底板一定是不能用的,所以全區的地板都要先下一層4分夾板做底再貼面材

底板做完後換牆面

在鐵皮跟封板間塞好隔熱綿並且保持適當的距離,才可以完全隔絕鐵皮外的高溫

先好隔熱綿後封矽酸鈣板

那道灰色的鐵皮是我們刻意保留貨櫃原本的牆面,讓貨櫃屋結合工業感做為沙發背牆

接下來衛浴防水的部份也很重要 我們要在貨櫃內做一個家庭式的泡澡空間
而且乾濕分離是一定要的!!

貨櫃內部一樣先塞滿隔熱綿後封上實心水泥板,然後四邊牆面跟地面防水打底

浴缸下面的防水也很重要唷!! 雖然浴缸本身是FRP,但難保哪天浴缸破了或是漏水

做完防水後要試水72小時,也就是讓衛浴空間整間放滿水淹地板,確認沒有漏水才可以貼磁磚
上圖看到地板有滲水的痕跡,就是在人造石門崁跟地面的接縫處出了問題!!
所以二話不說立馬拆掉重來一次! 確認到完全沒漏才可以貼磁磚!![]()

確認過沒問題貼磁磚完成

然後再裝上乾溼分離的隔間貨櫃屋內的家庭式澡堂就完成嚕!

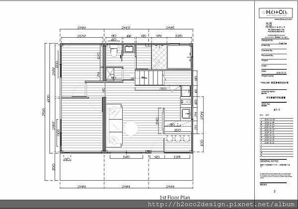
這是一樓的平面圖,樓下有兩個房間,開放式的廚房跟小吧檯

樓梯下方是業主收納露營用具的地方,鐵網做成的樓梯扶手也可以吊一些平常常用的小物品唷

簡單的廚具面對落地窗處是吧台,有多人來渡假的時候吧台可以結合落地窗方便室內外一起使用

因為貨櫃本身的高度就已經很有限的狀況下我們天花板不下降
燈具的部份就用軌道燈不用崁燈


在設計中因為貨櫃的空間有限,我們盡量縮小臥室的空間保留給客餐廳
希望在渡假的同時讓家人好友們有更多互動的機會

在有限的空間內,我們把洗手台移到外面方便多人使用,馬桶間跟衛浴空間也是各自獨立的
小朋友出去玩回來要洗手也比較方便唷!

一樓的客房

一樓臥室

通往2F的鐵件樓梯,用白鐵本色跟不加裝飾的鍍鋅鐵板,強調工業風的設計概念

2F是用一個單獨的貨櫃做為主臥室使用,落地窗走出去後是個觀景小平台

一個20呎貨櫃的空間約5.5,剛好可供業主一家四口使用

既然是提倡環保,太陽能熱水器是一定要有的
聽業主說現在申裝政府還有補助唷!


讓我們一起回歸最簡單的生活
在享受大自然給我們這麼美好的環境時
希望大家都要友善的對待週邊的環境
貨櫃屋是對於保護原始地貌很溫和的建築方式
但即便是使用二手貨櫃改造成住宅,大眾還是容易誤解以為貨櫃建築成本低
雖然以往貨櫃屋在台灣不是檳榔攤就是工寮
現在透過設計貨櫃屋在變身成小別墅或是店面的案例越來越多,但是貨櫃本身加上鋼構的結構補強,隔熱防水等等
其實跟一般鐵件或是鋼構的建築成本是差不多的,如果喜歡貨櫃屋的朋友們
千萬不要誤以為外面一個貨櫃屋好像賣個710萬就有
但是如果你要量身訂作屬於自己的貨櫃屋,差不多每坪也要準備10-15萬 (含內裝家具空調)
所以算一算一個20呎的貨櫃做到好,或許加一些室外的植栽 南方松 鐵件雨遮大約一個櫃會落在50萬左右了
還是要考量一下成本唷! !
設計有限公司
線上客服 line ID: @h2oco2 
Visit Us At:http://www.h2o-co2.com/
FACEBOOK:http://www.facebook.com/h2oco2
Blogs: http://h2oco2design.pixnet.net/blog
youtube官方頻道: https://goo.gl/3oqBb5
Mail: serve@h2o-co2.com
TeL:886-2-8663-1159
886-2-8663-9516
Add:(11687)台北市文山區興隆路二段13號2F
2F., No.13, Sec. 2, Xinglong Rd., Wenshan Dist., Taipei City 116, Taiwan (R.O.C.)
